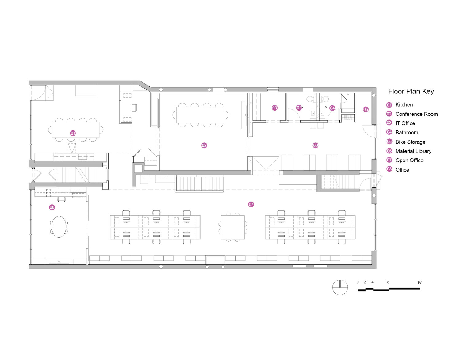
Located in the up and coming neighborhood of Noble Square, this 3,900 sf office offers a break from the hustle and bustle of downtown and provides a large amount of natural light for its employees. The kitchen at the front entrance is a welcoming space for all who enter. A wood feature unites reception with the studio space. The North side of the building creates a connection between Thomas Street and one of Chicago’s green alleys.














